[email protected] | phone [email protected] | phone
cartcart
arrow
arrow

Uw eigen Kempische woning

Graag volledig uit eigen ontwerp realiseren? Naast onze karaktervolle modelwoningen bouwen we ook Kempische woningen volledig op maat. Uw ontwerp, uw indeling, uw droomhuis.

Neem contact op voor een vrijblijvende prijsindicatie

Uw eigen Kempische woning

Woninginformatie

Bij KempiQ draait alles om karakter en kwaliteit. Naast onze zorgvuldig ontworpen modelwoningen bieden we ook volledig maatwerk in de Kempische stijl. Heeft u specifieke woonwensen, een unieke indeling in gedachten of wilt u bepaalde materialen of details toevoegen?
Samen creëren we een woning die niet alleen aanvoelt als thuis, maar ook perfect aansluit bij uw stijl, levensfase en toekomstplannen. Van de eerste schets tot het laatste detail: uw Kempische droomhuis, wij realiseren het voor u.

Onderstaand ziet u diverse Kempische woningen die wij hebben mogen realiseren voor onze opdrachtgevers. Staat binnenkort uw eigen woning hiertussen? 

arrow
arrow

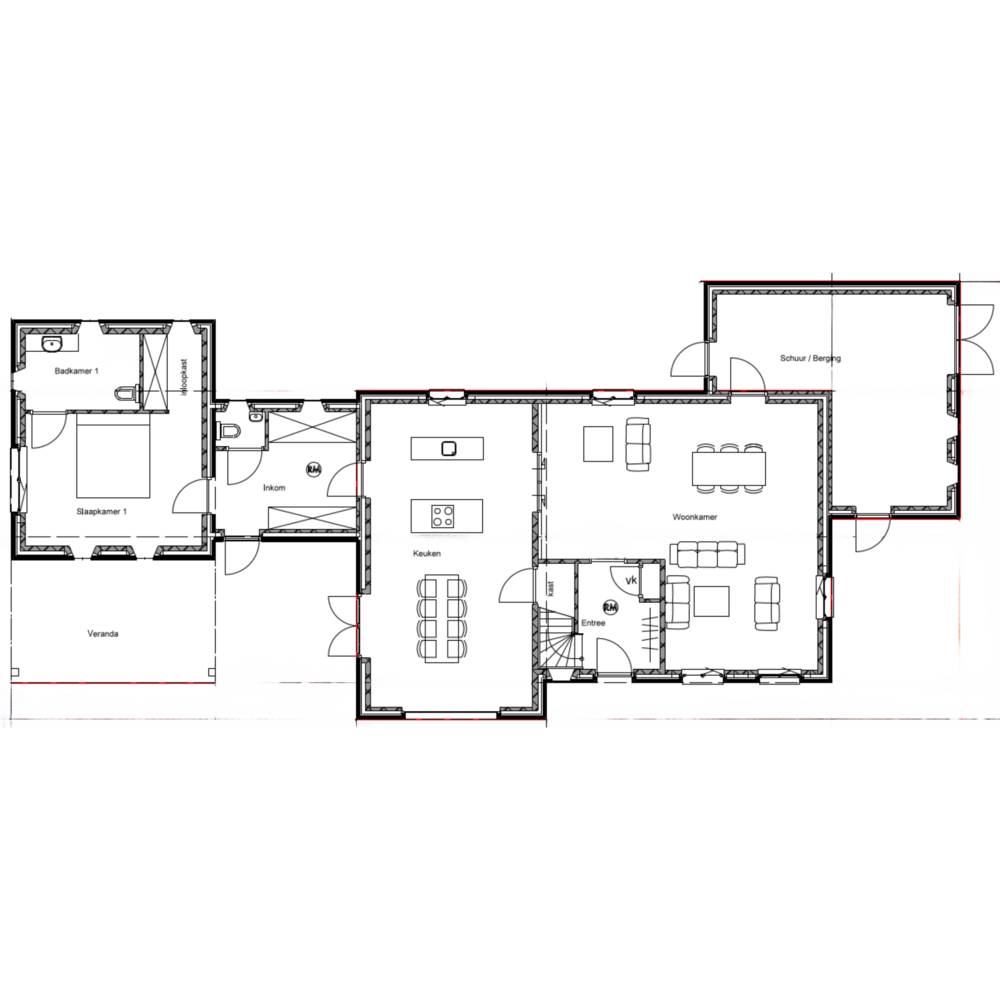
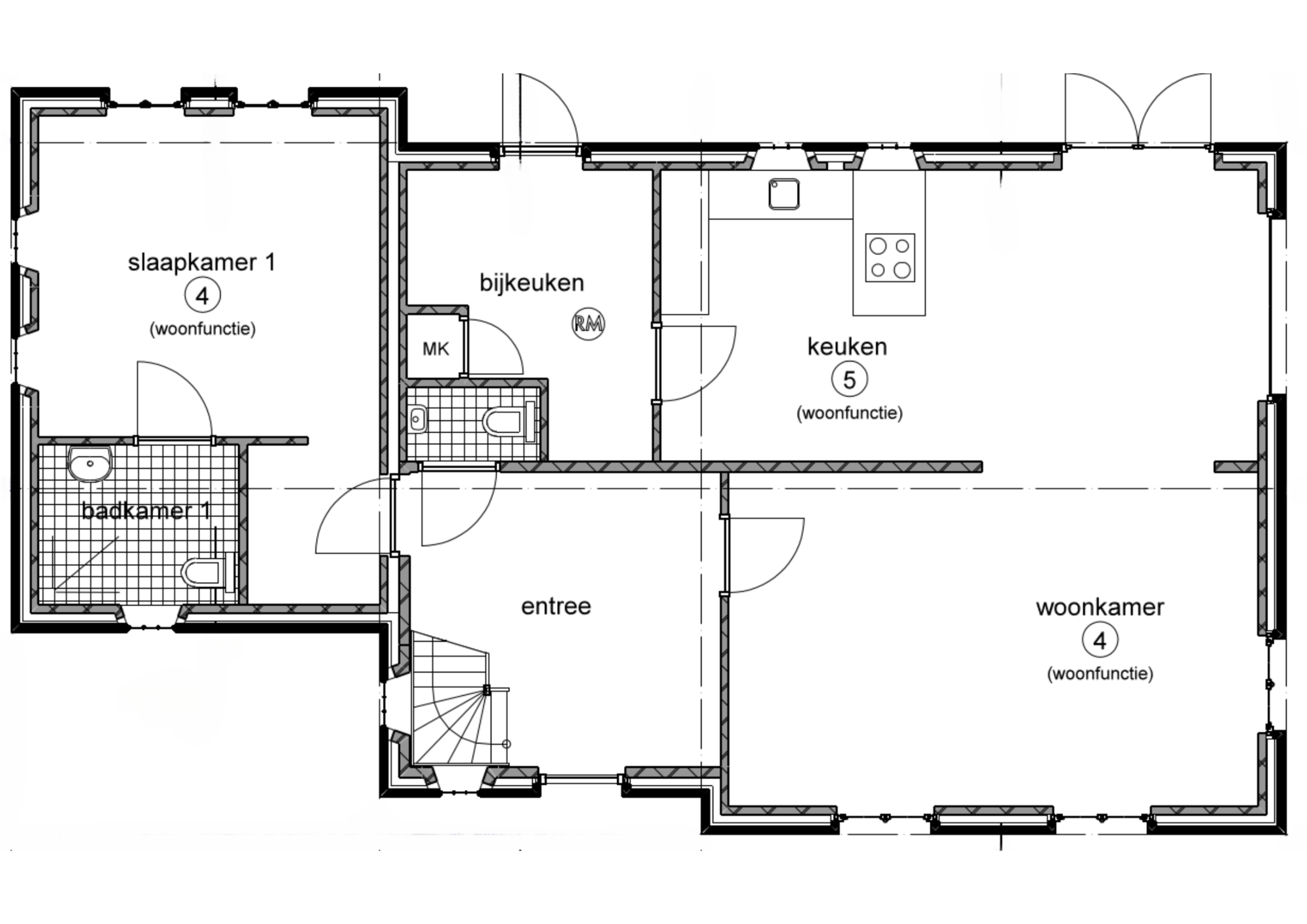
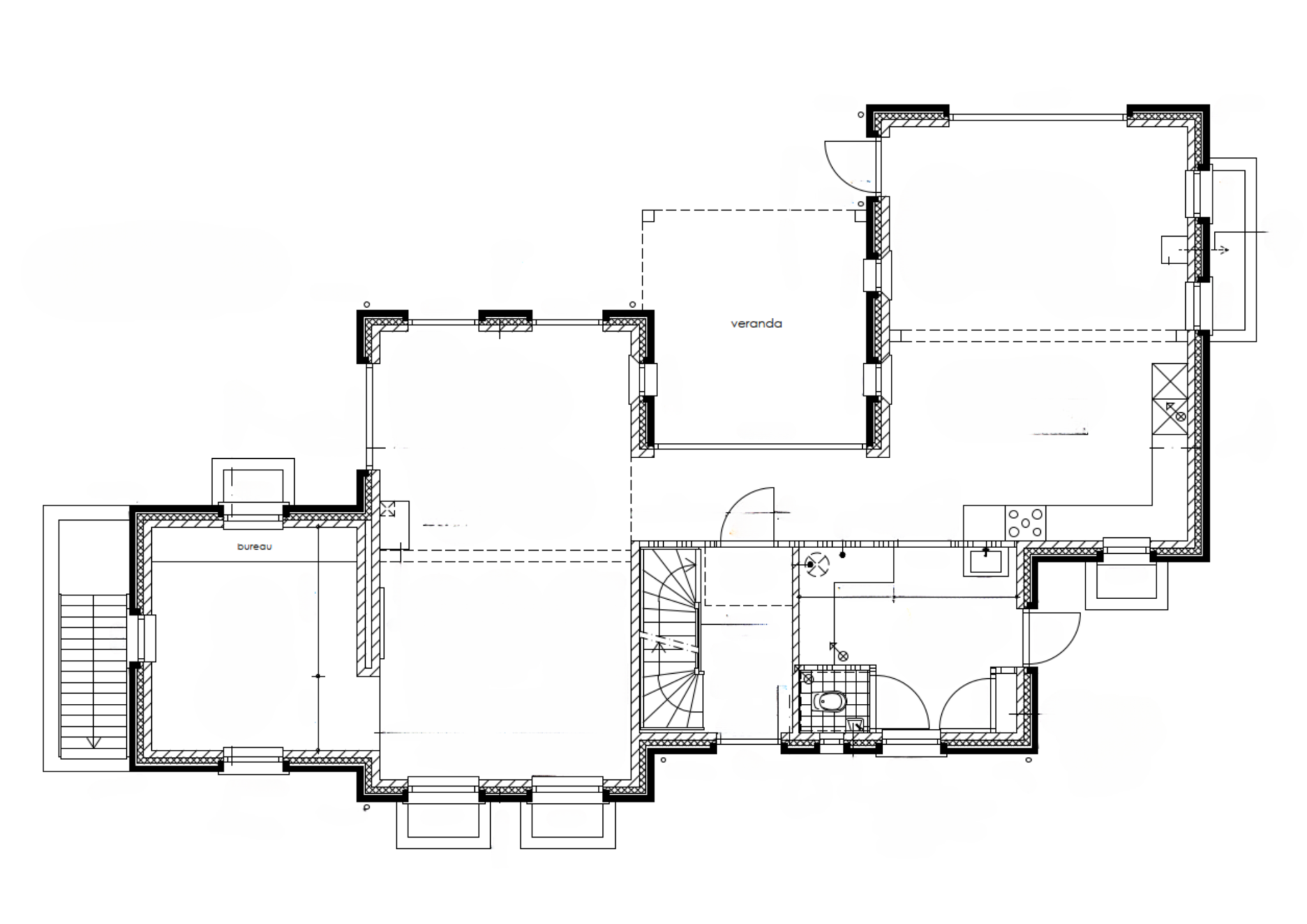
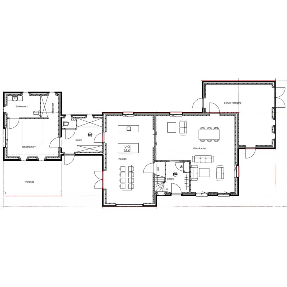
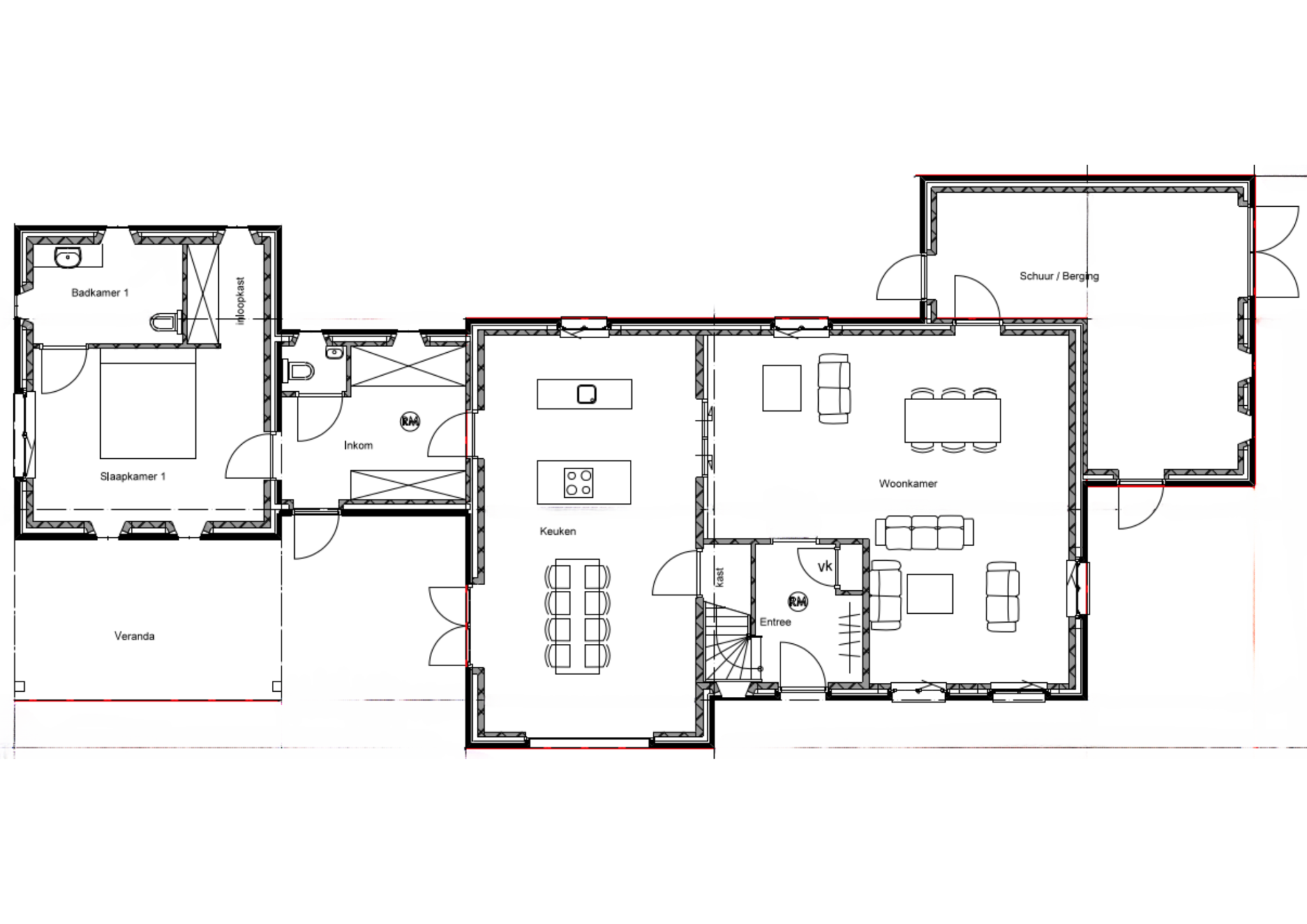
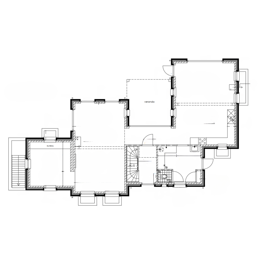
Plattegronden

Wat vinden andere opdrachtgevers?

Familie B. uit Zetten

We kijken met een supergoed gevoel terug op de samenwerking. Alles was helder en prettig geregeld. Het contact en de communicatie verliep heel fijn! De lijnen waren kort en we wisten altijd precies bij wie we moesten zijn. ‘Afspraak is afspraak’ staat duidelijk hoog in het vaandel, en dat geeft vertrouwen. We werden steeds op tijd meegenomen in de volgende stappen en waar we alvast over na konden denken. Was er iets? Dan kwamen ze direct langs om mee te denken, oplossingsgericht en betrokken. De gebruikte materialen zijn van topkwaliteit, stijlvol en passen helemaal bij het karakter van het huis, zonder dat het extreem duur hoeft te zijn. Perfecte mix van uitstraling en degelijkheid. Als je op zoek bent naar een partij waarbij de eigenaar z’n naam echt durft te verbinden aan het eindresultaat, een huis dat helemaal past bij jouw wensen, dan zit je hier helemaal goed.

Familie W. uit Dodewaard

Gedurende de hele bouw hebben we de samenwerking als zeer prettig ervaren. Ook de beloofde planning werd keurig gehaald. De mogelijkheid tot uitzoeken en bekijken van materialen zoals stenen, voegen, vloeren en beslag bij Kempiq heeft veel meerwaarde gehad voor ons. Daardoor konden we efficiënt de spullen uitzoeken en kostte het niet meer tijd als nodig. Ook de samenwerking met jullie vakmannen, net als de communicatie en aansturing hebben we als prettig ervaren. Bouwen in de kempische stijl vraagt meer hand(metsel)werk, maar ook mooi om te zien dat sommige zaken toch wel op de ‘moderne’ manier gedaan worden, met prefab onderdelen. Tegen anderen zou ik willen zeggen: Als kwaliteit en een goede samenwerking belangrijk is, zou ik altijd voor KempíQ kiezen.

Familie M. uit Opheusden

Het contact is erg fijn en verloopt soepel. Ook wordt er goed meegedacht en zijn er korte lijnen, waardoor je snel antwoorden krijgt. We hadden een team met veel vakmanschap in huis, waardoor we onze droomwoning kregen. Er is zoveel keuze om een huis samen te stellen in zowel nieuwe als oude stenen dat het een feestje is om naar de showroom te gaan waar je heel goed wordt geadviseerd. Jullie leveren echt vakwerk en werken met kwalitatief hoogwaardige producten. We zouden direct weer met jullie bouwen, een echte aanrader!

Familie P. uit Hendrik-Ido-Ambacht

Als we onze woning binnenlopen krijgen we echt het gevoel van thuiskomen. De woning doet eigen aan, voldoet aan onze wensen is prachtig geworden! Voor het bouwen van een huis is het van het grootste belang dat er vertrouwen is tussen de bouwer(s) en de opdrachtgever. Het is een intensief traject, maar de gesprekken waren constructief en de samenwerking met onderaannemers verliep over het algemeen goed. Punten die we opmerkten tijdens de bouw werden meestal direct verholpen waardoor bij de oplevering het aantal verbeterpunten minimaal was. Wij hebben ervaren dat jullie mensen een mooie en goede woning af willen leveren. Daar gaan ze voor en dat is ze ook gelukt!

Familie W. uit Dodewaard

De ongelooflijke charme van de kempische stijl, de groene aankleding en de locatie maken onze woning tot een vredig geheel. We vinden de stenen en de voeg gecombineerd met de dakpannen ontzettend mooi. Bij KempíQ is veel mogelijk en daarnaast is de duidelijke en snelle communicatie ook een pluspunt. Kortom: KempíQ doet zijn uiterste best om uw project van begin tot eind uit te voeren naar uw wensen. U wordt daarbij ook nog eens ontzorgd en kunt het project met een gerust hart aan hen overlaten. Daarbij staan ze volledig open voor uw inbreng. Ze denken actief mee en bieden kennis en expertise als het gaat om de bouw van uw huis.

Toon meer reviews
Meer informatie ontvangen?

Vraag onze brochure vol inspiratie en informatie aan!

Veelgestelde vragen

We kunnen ons voorstellen dat u veel vragen hebt. Het is immers een nieuw concept. Toch hebben we geprobeerd zo goed mogelijk antwoord te geven op een aantal vragen. Staat uw vraag hier niet tussen? Neem gerust contact op, we beantwoorden ze graag.

Wat is een modelwoning?

De modelwoningen van KempíQ combineren de vertrouwde kwaliteit van traditionele bouw met de efficiëntie van slimme voorbereiding. Dankzij vooraf uitgevoerde stappen, zoals het teken- en rekenwerk, zijn deze woningen sneller en voordeliger te realiseren. Geen dubbel werk per project dus — wél een flinke besparing in tijd én kosten. Slim bouwen, zonder concessies. En hoewel het ontwerp vaststaat, heeft u volop mogelijkheden om de woning naar uw smaak aan te passen met diverse opties. Zo krijgt u een woning die voelt als úw thuis.

Wat is een maatwerk Kempische woning?

Past een modelwoning nét niet bij uw woonwensen? Dan bieden wij u de mogelijkheid om een volledig maatwerk Kempische woning te realiseren. Samen met een architect vertalen we onder andere uw ideeën, levensstijl en gezinssituatie naar een uniek ontwerp dat helemaal aansluit op uw persoonlijke wensen. Tijdens dit traject denken we niet alleen creatief met u mee, maar zorgen we ook dat het ontwerp voldoet aan alle technische en wettelijke eisen, zoals constructieberekeningen, het Bouwbesluit en de BENG-normen. Zo komt uw droomwoning stap voor stap tot leven: stijlvol, toekomstbestendig en helemaal van u.

Hoelang duurt het bouwen van mijn Kempische modelwoning?

Gemiddeld staat uw woning er binnen 20 weken na start bouw. De exacte bouwtijd hangt af van het gekozen model en de gewenste opties. We regelen de voorbereiding, zoals vergunningen en goedkeuringen, zo efficiënt mogelijk. Hierbij zijn we echter deels afhankelijk van externe partijen, zoals de gemeente.

Kan ik het ontwerp of de indeling zelf kiezen?

Onze modelwoningen zijn ontworpen met slim reken- en tekenwerk, waardoor het basisontwerp vastligt. Binnen deze heldere kaders zijn er wél volop mogelijkheden om uw woning een persoonlijke uitstraling te geven — van verschillende combinaties van gevelstenen en dakpannen tot het toevoegen van luiken, een erker of serre.
Voor modelwoning Kempenhof is bovendien een indelingsoptie beschikbaar waarmee u een vaste trap naar de zolder krijgt, in plaats van een vlizotrap.

Hoe werkt het kiezen van opties voor mijn modelwoning?

Tijdens een persoonlijk adviesgesprek kijken we samen naar uw kavel én uw woonwensen. Op basis daarvan stellen we de woning samen met behulp van een overzichtelijke optielijst. Zo ziet u direct welke keuzes beschikbaar zijn én wat de eventuele meer- of minderkosten zijn. Op die manier houdt u grip op het ontwerp én op het budget.

Is een Kempische woning energiezuinig?

Absoluut! Sinds 2021 voldoen alle nieuwbouwwoningen aan de BENG-eisen (Bijna Energie Neutraal Gebouw), en dat geldt ook voor onze Kempische modelwoningen. Hierdoor combineren ze het authentieke, karakteristieke uiterlijk met de voordelen van moderne, energiezuinige technologieën.
Onze woningen zijn uitgerust met een warmtepomp, vloerverwarming en zonnepanelen, waardoor ze niet alleen bijna energieneutraal zijn, maar ook zorgen voor laag energieverbruik en optimaal wooncomfort.

Hoe verloopt het bouwproces van een Kempische modelwoning?

Om u een helder beeld te geven van ons bouwtraject, hebben we een overzicht voor u opgesteld. Klik hier om het volledige overzicht te bekijken.

Hoe werkt het met de bouwvergunning?

Wij kunnen het volledige vergunningstraject voor u uit handen nemen, inclusief een eventuele bestemmingsplanwijziging en het indienen van de vergunningsaanvraag. Dit is vaak een complex proces, daarom is het verstandig om dit door ons te laten uitvoeren. Uiteraard kunt u er ook voor kiezen om dit zelf te regelen.

Ontvang gratis ons inspiratie magazine.